связаться с нами
(496)
215-01-51
Время работы:
пн.-пт. 10:00 - 18:00
О компании
Наши проекты
Строящиеся объекты
Многоквартирный жилой дом в г. Дубна, ул. Боголюбова 22
Реализованные объекты
Контакты
Город Дубна
Программы кредитования
Полезная информация
Трансляция
г. Дубна, МО, ул. Станционная , д. 32, офис 7.
info@invdep.ru
(496) 215-01-51
© ООО Специализированный застройщик «Инвестиционный департамент», 2008-2026
Юридическая информация
создание сайтов -
Webis Group
ООО Специализированный застройщик "Инвестиционный Департамент"
»
Наши проекты
»
Строящиеся объекты
»
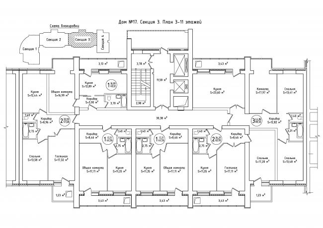
Дом №17 квартал 24
»
Планировки
Секция 4 типовой этаж
Секция 3